Doppelhaushälfte mit Terrasse und Garten in Düsseldorf-Urdenbach


Meine Notiz

Eckdaten

Kaufpreis
549.000,00 EUR
Zimmer
6 Zimmer
verfügbar ab
sofort
Anbieter-ID
2075-Aue-4

Kosten

Provisionspflichtig
ja
Provision
3.57 %
Provision inkl. MwSt.
ja

Detaillierte Informationen

Flächen/Räume
Nutzfläche
64,44 m²
Zustand
Objektzustand
Renovierungsbedürftig
Parkmöglichkeiten
Garage Anzahl
1
Freiplatz Anzahl
1

Ausstattungsmerkmale

Heizung
Zentralheizung
Stellplatzart
Garage Freifläche
Ausstattungs-Kategorie
Standard
Allgemein
Gäste-WC
Keller
unterkellert

Energieausweis

Energieausweis Art
Bedarfsausweis
Endenergiebedarf/ Endenergieverbrauch
542,7 kWh/(a*m²)
Energieeffizienzklasse
H
Wesentlicher Energieträger
Gas
Baujahr des Hauses
1938
  • 0
  • 25
  • 50
  • 75
  • 100
  • 125
  • 150
  • 175
  • 200
  • 225
  • >250
  • A+
  • A
  • B
  • C
  • D
  • E
  • F
  • G
  • H

Endenergiebedarf/-verbrauch in kWh je m² und Jahr

Beschreibung

Die Doppelhaushälfte mit überdachter Terrasse, Garten und großer Garage befindet sich im Stadtteil Düsseldorf-Urdenbach - in Rheinnähe.

Ausstattung

  • teilunterkellerte Doppelhaushälfte mit Garage
  • schön angelegter Garten
  • Garage mit Zugang zum Garten
  • Stellplatz vor der Garage
  • überdachte Sonnenterrasse (Westlage)
  • 2 Eingangstüren
  • großer Wohn- und Essbereich
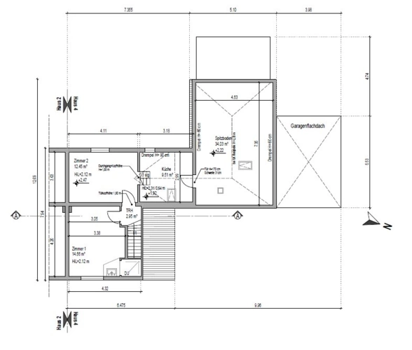
  • 2 Zimmer (Schlafen, Kind, Büro) im Erdgeschoss
  • 2 Zimmer im Obergeschoss
  • weiteres Zimmer mit Küchenanschluss im Obergeschoss
  • Gäste-WC und Duschbad mit Fenster im Erdgeschoss
  • das Haus verfügt über isolierverglaste Kunststofffenster mit Doppelverglasung und Rollläden (teilweise elektrisch)
  • die Beheizung des Hauses erfolgt über eine Gaszentralheizung (Firma Vaillant / BJ 2010)
  • die Warmwasseraufbereitung ist über die Heizung geregelt
  • Bodenbeläge: Laminat, Teppich und Fliesen
  • der TV-Empfang ist über das Kabelnetz gesichert
  • die Doppelhaushälfte befindet sich in einem modernisierungs- bedürftigen Zustand
  • Ausbaupotential im Dachgeschoss

Lage

Die Doppelhaushälfte liegt in einer ruhigen Straße im Stadtteil Urdenbach, der ganz im Süden von Düsseldorf liegt und im Norden an den Stadtteil Benrath grenzt. Geschäfte des täglichen Bedarfs (Sparkasse, Apotheke, Bäckerei, Blumenladen, Restaurants) erreichen Sie teilweise fußläufig oder in wenigen Minuten mit dem Pkw. Für Freizeitaktivitäten bieten sich der Schloßpark von Schloss Benrath sowie der Grüngürtel des nahe gelegenen Naturschutzgebietes “Rheinaue Urdenbach“ mit direktem Blick auf den Rhein an. Über die Rheinfähre Zons-Urdenbach erreichen Sie die Städte Zons und Dormagen als Ausflugziele. Die Autobahnauffahrt Düsseldorf Garath (A59) sichert Ihnen die direkte Anbindung an die A46 Richtung Düsseldorf/Neuss/ Wuppertal und über das Autobahnkreuz Hilden erreichen Sie auf schnellem Wege die Autobahn A3 Richtung Oberhausen und Köln. Über die A 59 gelangen Sie auch auf direktem Wege nach Leverkusen und auf die A1 Richtung Dortmund.