Projektvorbereitung Wohnprojekt mit Betreuungsmöglichkeit- Burscheid-Hilgen


Meine Notiz

Eckdaten

Genaue Adresse
Müllersbaum 20
Kaufpreis
251.800,00 EUR
Zimmer
2 Zimmer
Anbieter-ID
AU378

Kosten

Hausgeld
212,00 EUR
Provision
keine

Detaillierte Informationen

Flächen/Räume
Anzahl Etagen
2
Schlafzimmer
1
Badezimmer
1
Zustand
Objektzustand
Erstbezug
Parkmöglichkeiten
Tiefgarage Anzahl
1
Tiefgarage Kaufpreis
20.000,00 EUR

Ausstattungsmerkmale

Heizung
Fußbodenheizung
Befeuerung
Solarheizung
Fahrstuhl
Personenfahrstuhl
Stellplatzart
Garage Tiefgarage
Ausstattungs-Kategorie
Gehoben

Energieausweis

Energieausweis Art
Bedarfsausweis
Endenergiebedarf/ Endenergieverbrauch
15,00 kWh/(a*m²)
Energieeffizienzklasse
A+
Wesentlicher Energieträger
SOLAR
Baujahr des Hauses
2026
  • 0
  • 25
  • 50
  • 75
  • 100
  • 125
  • 150
  • 175
  • 200
  • 225
  • >250
  • A+
  • A
  • B
  • C
  • D
  • E
  • F
  • G
  • H

Endenergiebedarf/-verbrauch in kWh je m² und Jahr

Beschreibung

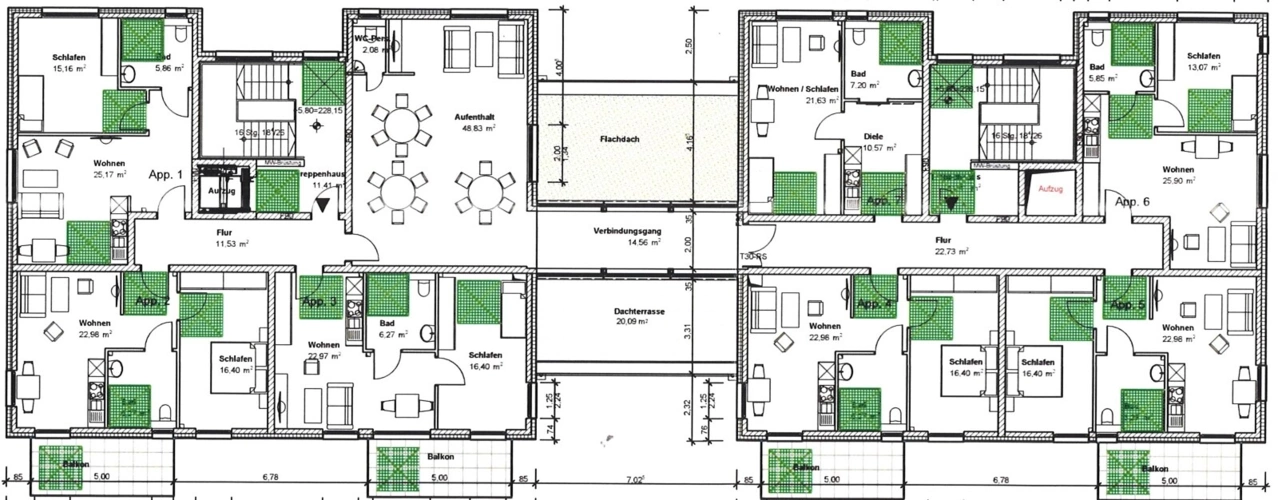
In der eigenen Wohnung selbstbestimmt alt werden und den Alltag in einer Gemeinschaft erleben. Barrierefreie Wohnung mit einem zusätzlichen ca. 110 qm großen Gemeinschaftsraum / Wohnraum, Küche und 20 qm Süd-Dachterasse als Treffpunkt für alle die nicht nur in Ihren eigenen vier Wänden verweilen möchten.

Ausstattung

  • Parkettboden
  • Fußbodenheizung
  • Barrierefrei, inkl. barrierefreier Hauszugang
  • Lüftungsanlage mit Wärmerückgewinnung
  • Co2-freie Wärmeversorgung, zu ca. 70% durch die Sonne
  • Mieterstrom-Modell mit PV-Anlage auf Gebäudedach
  • Gemeinschafts-Wohnraum
  • Garage oder Carport-Stellplatz

Sonstige Angaben

  • 16.500,00 € Sofortzahlung + Hinterlegung Restbetrag zu 4% Zinsen bis zur Baugenehmigung auf einem Anwalts-Treuhandkonto

Besuchen Sie gerne die Projekt-Homepage: https://www.i-d-g.de/aktuelle-standortangebote/burscheidt-hilgen

Die Finanzierung des Kaufpreises ist mit zinsgünstigen KfW-Mitteln (teilweise 0,10%) möglich sofern ein Mindest-Eingenkapital in Höhe von 71.800,00 € verfügbar ist. Der monatliche Gesamtaufwand beträgt dann 784,50 €, inkl. Tilgung.

Mailadresse: Genossenschaft-burscheid@i-d-g.de Tel.-Nr. Marisa: 0221-29977102 0152-37160628

-Sichern Sie sich schon jetzt einen Platz im barrierefreiem Genossenschaftsprojekt!

Karte

Lage

Ruhige Lage in Burscheid-Hilgen, wenige Fußminuten zum Einkauf für den täglichen Bedarfs.

Nur wenige Meter vom Haus entfernt führt der beliebte Fahrrad- und Wanderweg Balkantrasse von Opladen bis Lennep oder Marienheide. Hinter der Balkantrasse verläuft das schöne Murbachtal bis nach Leichlingen. Eine direkte Anbindung gibt es nach Opladen, Wermelskirchen, Wipperfürth bis nach Marienheide.