Moderne Neubau-Büroflächen im Zentrum von Langenfeld – jetzt mieten!


Meine Notiz

Eckdaten

Genaue Adresse
Solinger Straße 72

Detaillierte Informationen

Zustand
Objektzustand
Erstbezug
Alt-/Neubau
Neubau
Parkmöglichkeiten
Freiplatz Anzahl
1
Freiplatz Mietpreis
85,00 EUR

Ausstattungsmerkmale

Ausstattungs-Kategorie
Gehoben
Bauweise
Massivhaus
Heizung
Fußbodenheizung Zentralheizung
Sicherheitstechnik
Kamera
Stellplatzart
Freifläche
Allgemein
barrierefrei

Energieausweis

Energieausweis Art
Bedarfsausweis
Energieausweis Jahrgang
Ab dem 01.05.2021
Energieausweis Gebäudeart
Wohngebäude
Endenergiebedarf/ Endenergieverbrauch
22,58 kWh/(a*m²)
Energieeffizienzklasse
A+
Wesentlicher Energieträger
Wärmepumpe
Baujahr des Hauses
2025
  • 0
  • 25
  • 50
  • 75
  • 100
  • 125
  • 150
  • 175
  • 200
  • 225
  • >250
  • A+
  • A
  • B
  • C
  • D
  • E
  • F
  • G
  • H

Endenergiebedarf/-verbrauch in kWh je m² und Jahr

Beschreibung

Moderne Büroeinheit zur Miete – zentral in Langenfeld

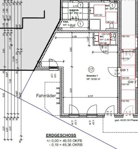
Profitieren Sie von dieser hellen Büroeinheit im Erdgeschoss mit 54,03 m², die individuell nach Ihren Anforderungen gestaltet werden kann. Durch flexible Zwischenwände lässt sich die Fläche optimal an Ihre Bedürfnisse anpassen – ideal für Praxisräume oder Büroeinheiten.

Die Einheit ist barrierefrei zugänglich und verfügt über einen eigenen Eingang, was maximale Privatsphäre und direkten Zugang für Mitarbeiter oder Kunden ermöglicht. Ein blickdichter Kellerraum bietet zusätzlichen Stauraum.

Ein umfassendes Servicepaket – inklusive Winterdienst, Treppenhausreinigung, Pflege der Außenanlagen und Hausverwaltung – sorgt dafür, dass das Gebäude stets gepflegt und repräsentativ bleibt.

Wie alle unsere Neubauprojekte wird auch diese Immobilie in Massivbauweise errichtet. Die Büroeinheit steht schlüsselfertig zur Verfügung, sodass Sie sofort einziehen oder einrichten können. Dank des eingespielten Teams aus erfahrenen Architekten, Bauleitern und langjährigen Handwerkspartnern profitieren Sie von hoher Qualität und einem durchdachten Bauprozess.

Besonderheit / Exklusivität: Besichtigen Sie die Einheit bereits im Rohbau und gewinnen Sie einen Eindruck von Raumaufteilung, Lichtverhältnissen und den Möglichkeiten, die Bürofläche individuell zu gestalten. So sichern Sie sich Ihre Wunschfläche noch bevor andere Interessenten zuschlagen.

Jetzt Termin zur Rohbau-Besichtigung vereinbaren und Ihre zukünftige Praxis- oder Bürofläche live erleben – zentrale Lage, flexible Gestaltung und repräsentatives Umfeld inklusive!

Ausstattung

Exklusive Ausstattungsmerkmale sind bei einem solchen Objekt für uns selbstverständlich:

  • energiesparende Heiztechnik mit Wärmepumpe und Energieeffizienzklasse A+
  • Klimafreundliches Gründach und Photovoltaikanlage
  • Echtholzparkett- oder Fliesenfußböden auf Fußbodenheizung verlegt
  • Sanitärausstattung von namhaften Herstellern
  • Wärme- und schallisolierende Dreifachverglasung
  • Gegensprechanlage mit Videomonitoren
  • Sehr schön gestaltete Außenanlagen

Sonstige Angaben

Vereinbaren Sie noch heute eine gemeinsame Besichtigung Ihrer neuen Wohnung. Gerne nehmen wir uns neben Terminen unter der Woche auch an Wochenenden Zeit für Sie.

Karte

Lage

Das Wohn- und Geschäftshaus wird im Stadtzentrum von Langenfeld, gegenüber vom Rathaus und der Stadtsparkasse, errichtet. In nur wenigen Schritten erreichen Sie die Fußgängerzone mit Ihren vielseitigen Einkaufsmöglichkeiten, Restaurants und weiteren Annehmlichkeiten.

Verkehrstechnisch ist das Bauvorhaben hervorragend gelegen. Die Anbindung an die öffentlichen Verkehrsmittel befindet sich in ca. 150 Metern Entfernung und die Stadtzentren von Düsseldorf und Köln erreichen Sie mit dem Auto bequem in unter 30 Minuten.

Ein ausreichendes Parkangebot für Kunden des Büros bietet der große Parkplatz auf der gegenüberliegenden Seite des Büros.